Completely refurbished brand new flat with terrace and parking. , Palma de Mallorca, Baleares

  • €695,000
  • 3 beds
  • 2 baths
  • Air Conditioning
  • Garage
  • Near Beach

Description

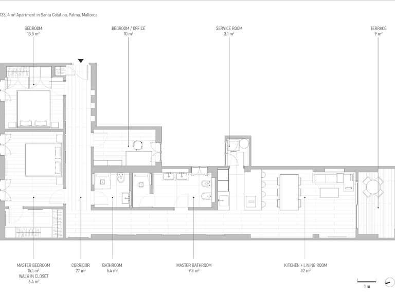
Completely refurbished brand new flat with terrace and parking. ~Spacious designer flat completely renovated in 2024, including floors, partition walls, ceilings, plumbing, wiring, windows, doors, etc....~High quality water, electricity and air-conditioning systems were installed and new solid stone partition walls were built. The acoustic and thermal insulation has been calculated and applied according to the Majorcan climate. ~~The result is a completely new, modern and cosy 3-bedroom flat with a bright high-end design and a total living area of 132m². It is in Scandinavian style, with a spacious entrance hall, three bedrooms with fitted wardrobes, two bathrooms, a spacious living room and an open, white, fully equipped kitchen with island. The ambience of the flat is completed by a terrace exclusively planted with indigenous Mediterranean plants.~The property is equipped with:~- central air conditioning~- home automation system (Smart Home System) and home cinema~- water softener and osmosis~- Geberit and Villeroy & Boch fittings in the bathrooms~- solid parquet floors~

Reference: MMV-13435-40130079_AA

Listing date: 11/03/2026

Location

Related Searches