Apartment for Sale in La Cala Golf, Mijas, Malaga

  • €516,900
  • 2 beds
  • 2 baths
  • 107 m²
  • Pool
  • Air Conditioning
  • Garage
  • Near Beach

Features

  • Communal Pool
  • Gated
  • Number of Parking Spaces: 1
  • Beach: 5000 Meters
  • Near Golf / Golf Resort Property
  • Double Bedrooms: 2
  • Near Schools
  • Near Commercial Center
  • Elevator/Lift
  • Gym
  • Views: Sea
  • Location: Urbanisation
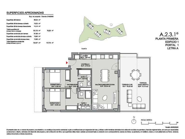
  • Terrace: 32 Msq.
  • Useable Build Space: 76 Msq.
  • Parking - Space
  • Storage / Trastero

Description

New Build Golf Front Apartments with Sea Views in La Cala de Mijas

Exclusive Residential Living on the Front Line of La Cala Golf
This exceptional new build residential complex is located on the front line of the renowned La Cala Golf Resort, offering panoramic golf and sea views in one of the most desirable areas of the Costa del Sol. Set in a peaceful natural enclave, the development is just 5 km, around 10 minutes by car, from the sandy beaches and vibrant promenade of La Cala de Mijas. This privileged location combines tranquillity, nature and easy access to coastal life.

Modern Apartments Designed for Mediterranean Living
The gated community consists of only 48 contemporary apartments distributed across four low rise buildings with ground, first and second floors. Homes are available with 2 or 3 bedrooms and benefit from a sought after south east orientation, maximizing natural light and open views. Ground floor and middle floor properties with big terraces or penthouses with private solariums. Selected groundfloors and penthouses have the option to add a private pool, creating a truly exclusive outdoor space.

High Quality Interiors and Smart Comfort
Each apartment has been designed with comfort and efficiency in mind. Interiors feature an open plan living and dining area with a fully furnished and equipped kitchen, creating a bright and functional living space. Bathrooms include modern furniture, mirrors and fixed shower screens. The homes are equipped with an advanced climate control system using aerothermal technology for domestic hot water and underfloor heating, as well as pre installation for home automation. Parking space and storage room are included with every property.

Resort Style Communal Areas
Residents can enjoy a full range of premium communal facilities designed to enhance wellbeing and leisure. The complex features two outdoor swimming pools including an infinity pool with sunbed area, landscaped gardens and peaceful relaxation zones. A complete wellness area includes a spa with jacuzzi, Turkish bath, sauna and hydrotherapy circuit. There is also a fully equipped gym, coworking space and a private gastro bar, offering the perfect balance between work, relaxation and social life.

Prime Location on the Costa del Sol
La Cala de Mijas is a highly popular coastal town known for its charming atmosphere, excellent restaurants, beach clubs and services. The area is also famous for its golf courses and natural surroundings, making it ideal for permanent living or investment.

Key Distances
La Cala de Mijas beach: 5 km
La Cala Golf Club: front line location
Marbella and Puerto Banus: 20 km
Malaga city: 30 km
Malaga International Airport: 35 km

Your New Home Overlooking the Golf Course Awaits
If you are looking for a modern apartment with sea and golf views in a secure and exclusive environment, this new development in La Cala de Mijas is the perfect choice. Contact us today for more information or to arrange a visit and discover your future home on the Costa del Sol.

Reference: MMV-60-NB-81654

Listing date: 13/03/2026

Location

Related Searches